Bay Tree House

Bay Tree House

The Down, Alveston

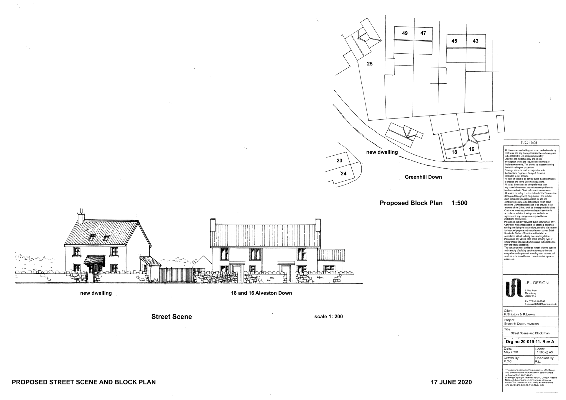
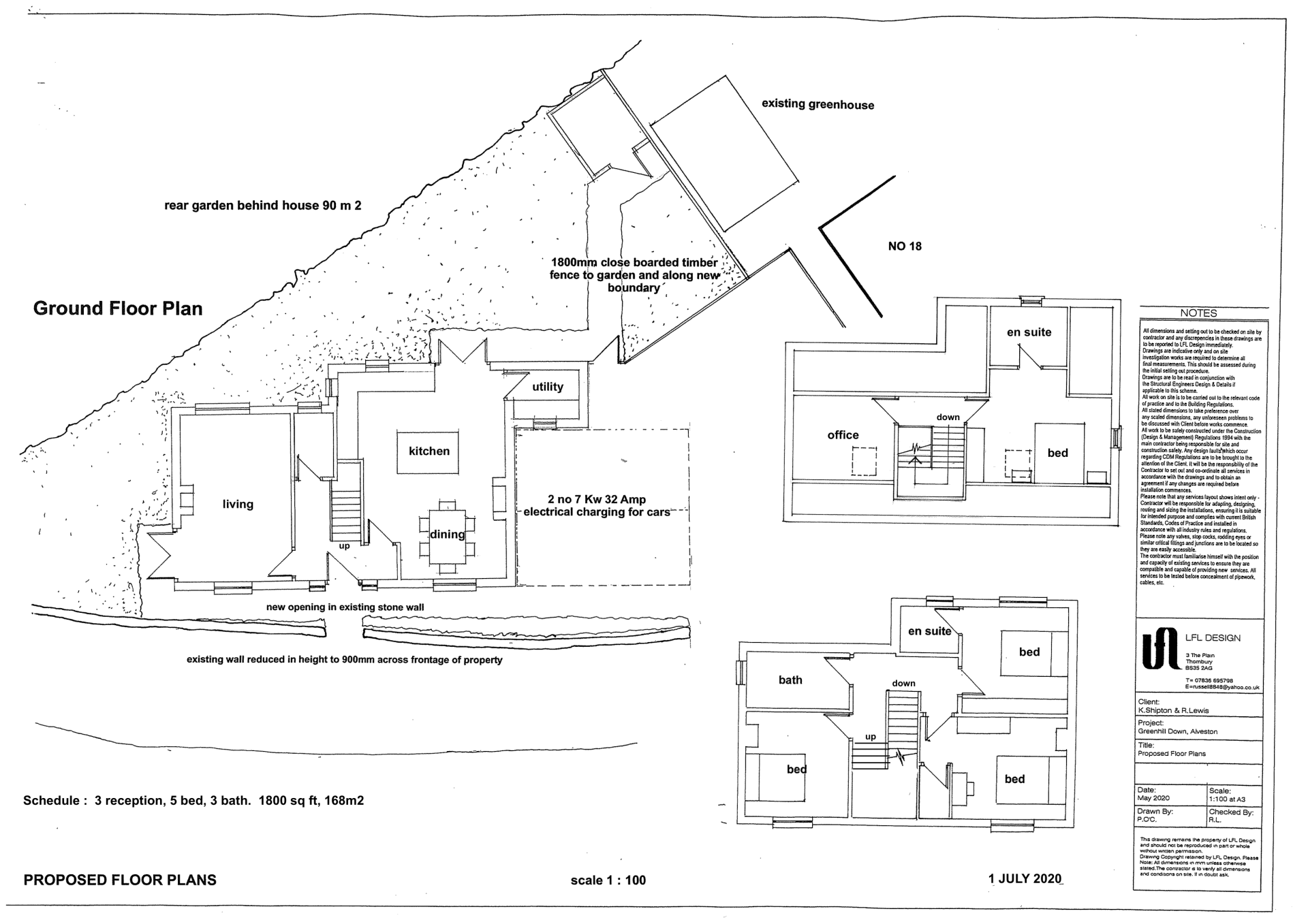
A design-and-build project in South Gloucestershire delivered this spacious five-bedroom home. It has a simple country farmhouse aesthetic featuring recycled stone and advanced sustainability with solar panels and an air source heat pump.

Key Features:

Nestled on an allotment plot in Alveston, South Gloucestershire, this design-and-build project successfully delivered a five-bedroom house that appears as a simple, beautiful traditional stone cottage. Managed end-to-end by Russell Lewis and executed by local tradesmen, the new dwelling seamlessly integrates with the surrounding area of classic stone cottages and natural stone walls.

The striking front façade is not only traditional but sustainable: the stunning stonework was recycled from a derelict cottage just three miles away. Beyond the salvaged stone, the house is an environmental masterpiece, featuring an air source heat pump, solar panels, and triple glazing complemented by extensive insulation.

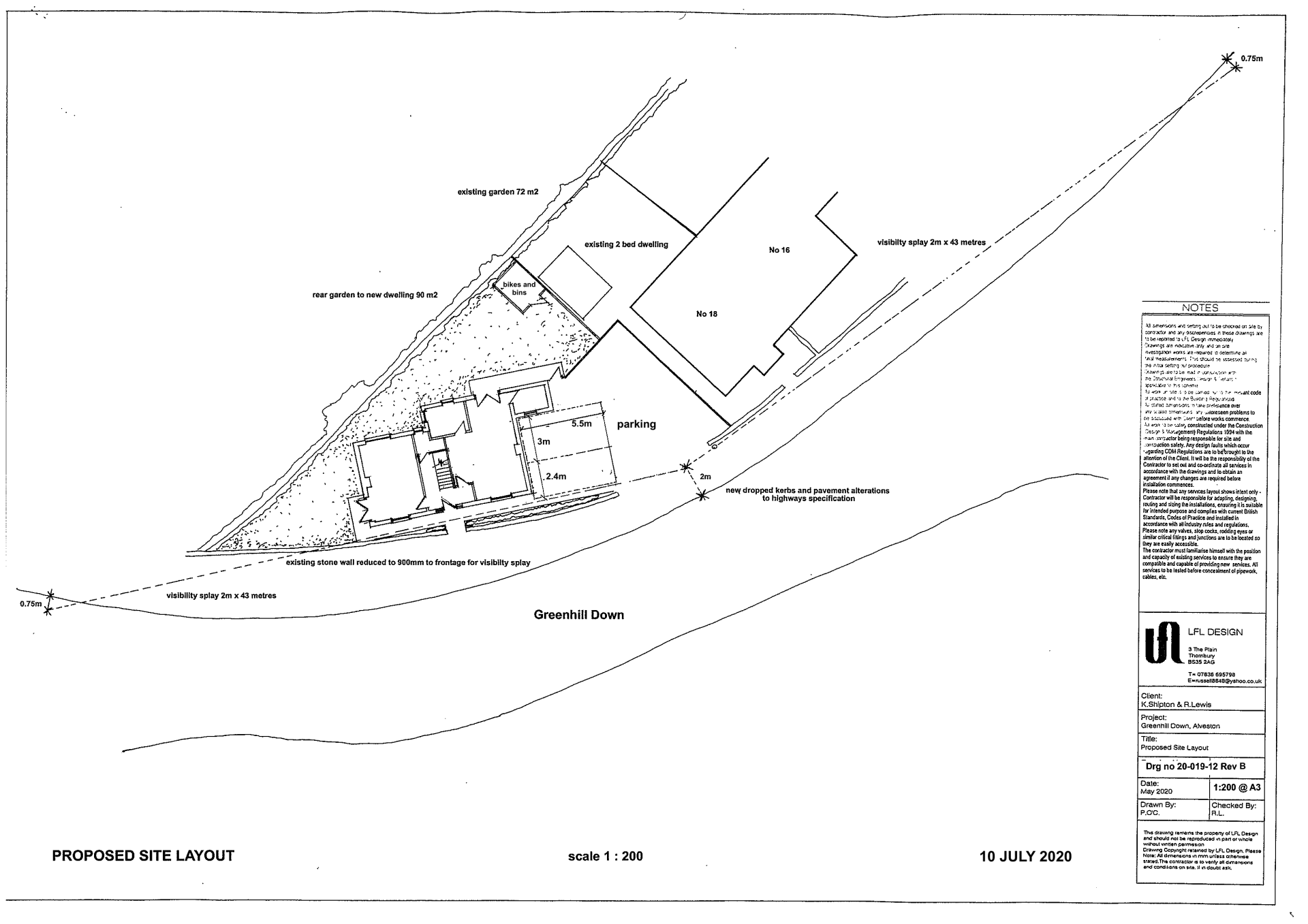
The spacious new dwelling provides ample room for the family, with a large footprint and plenty of parking. While the property features a small, south-west-facing courtyard garden, a nearby park less than 400 yards away provides a perfect compensating amenity for the family.